Longeron
Sommaire
Description
Les facettes intègre une strucute interne inspirés des châssis de voiture. Ce chassis est composé :
- de deux longerons qui assurent la résistance en flexion
- de profil suo donne la courbure à la tôle réfléchissante
- de renfort d'extrémité qui protège à la fois la tôle réfléchissante contre les déformations et les utilisateurs contre les risque de coupures
Comme pour les châssis de voiture, ces pièces sont réalisée en tôle pliée. Et l'assemblage peut se faire par point de soudure.
Une "carrosserie" qui protège la face arrière de la tôle réfléchissante et limite la prise au vent est fixé sur le dessous du châssis. Cette facette vient se fixer sur le carré d'entrainement qui assure un positionnement angulaire optimum (est donne un complément de rigidité à l'ensemble).
Résistance
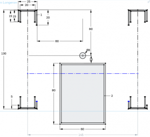
Géométrie
La rigidité est donnée par :
- le carré (ou rectangle) d’entraînement 80x60x2 sur l'image
- le haut des longerons : U dissymétrique de 15x25x20x1m
- le bas des longerons : U dissymétrique de 5x25x10x1m
Ou, au passage des profil :
- le carré (ou rectangle) d’entraînement 80x60x2 sur l'image
- le U du haut de 15x25x15x1m
- le U du bas de 15x25x15x1m
A noter que selon la facette, la distance entre le haut du longeron l'axe de rotation (60mm sur l'image) est variable afin d'assurer la concomitance des tache réfléchie.
Calcul du moment d'inertie (flexion verticale)
Le principe de calcul est le suivant :
- On découpe chaque forme en rectangle élémentaire
- On calcul la section de chaque élément par la formule a.h
- On calcul le moment d'inertie par la formule a.h^3 / 12
- On calcul le centre de gravité
- En applicant le théorème d'Huygens, on procéde au "déplacement" de chaque élément
- Le cumul donne le moment quadratique
- En divisant par la plus grande distance à l'axe, on obtient le module de flexion
Le calcul est a faire pour les deux parties :
- Longeron : 164 cm4 avec un module de flexion de 17 cm3
- passage de profil : 150 cm4 avec un module de flexion de 15 cm3
> Calcul du moment quadratique de la structure d'une poutre en tole pliée
Estimation de charge admissible (TODO : a vérifier)
La résistance de la facette peut être modulé en fonction de plusieurs paramétre :
- poutre du carré d'entrinement utilisée (attention toutefois au contrainte de cisaillement au niveau de la fixation)
- la hauteur de la facette
- mais surtout l'épaisseur de la tôle utilisé pour réaliser les longerons

