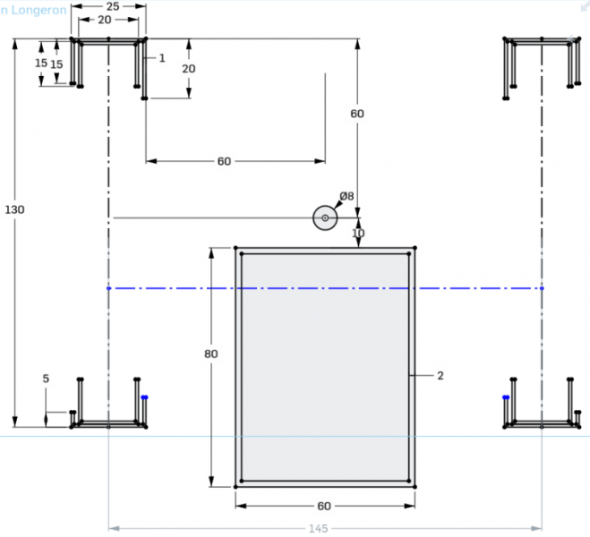
Fichier:CS Structure Facette.png
De Open Source Ecologie
Révision de 8 février 2017 à 14:08 par RemyB (discussion | contributions) (Vue en coupe du chassis d'une facette en tole pliée)
Taille de cet aperçu : 659 × 600 pixels. Autres résolutions : 264 × 240 pixels | 799 × 727 pixels.
Fichier d'origine (799 × 727 pixels, taille du fichier : 47 Kio, type MIME : image/png)
Vue en coupe du chassis d'une facette en tole pliée
Historique du fichier
Cliquer sur une date et heure pour voir le fichier tel qu'il était à ce moment-là.
| Date et heure | Vignette | Dimensions | Utilisateur | Commentaire | |
|---|---|---|---|---|---|
| actuel | 8 février 2017 à 14:08 | 799 × 727 (47 Kio) | RemyB (discussion | contributions) | Vue en coupe du chassis d'une facette en tole pliée |
- Vous ne pouvez pas remplacer ce fichier.
Utilisation du fichier
La page suivante utilise ce fichier :
